Tingyu Hsu Start a project
№ 01 / 2
Retrograde Bar & Lounge
Back to work
Hospitality 2015 Detroit, MI

Retrograde Bar & Lounge

A capstone design package for a 1,264 sqft two-story bar and lounge inside a 200 River Place warehouse — built out as a full construction document set.
Client
O'Malley Enterprise — Marcus Fitch, President
Role
Designer (team of three)
Scope
Programming, code, plans, RCP, elevations, sections, finishes, FF&E, specifications
Year
2015
On this project
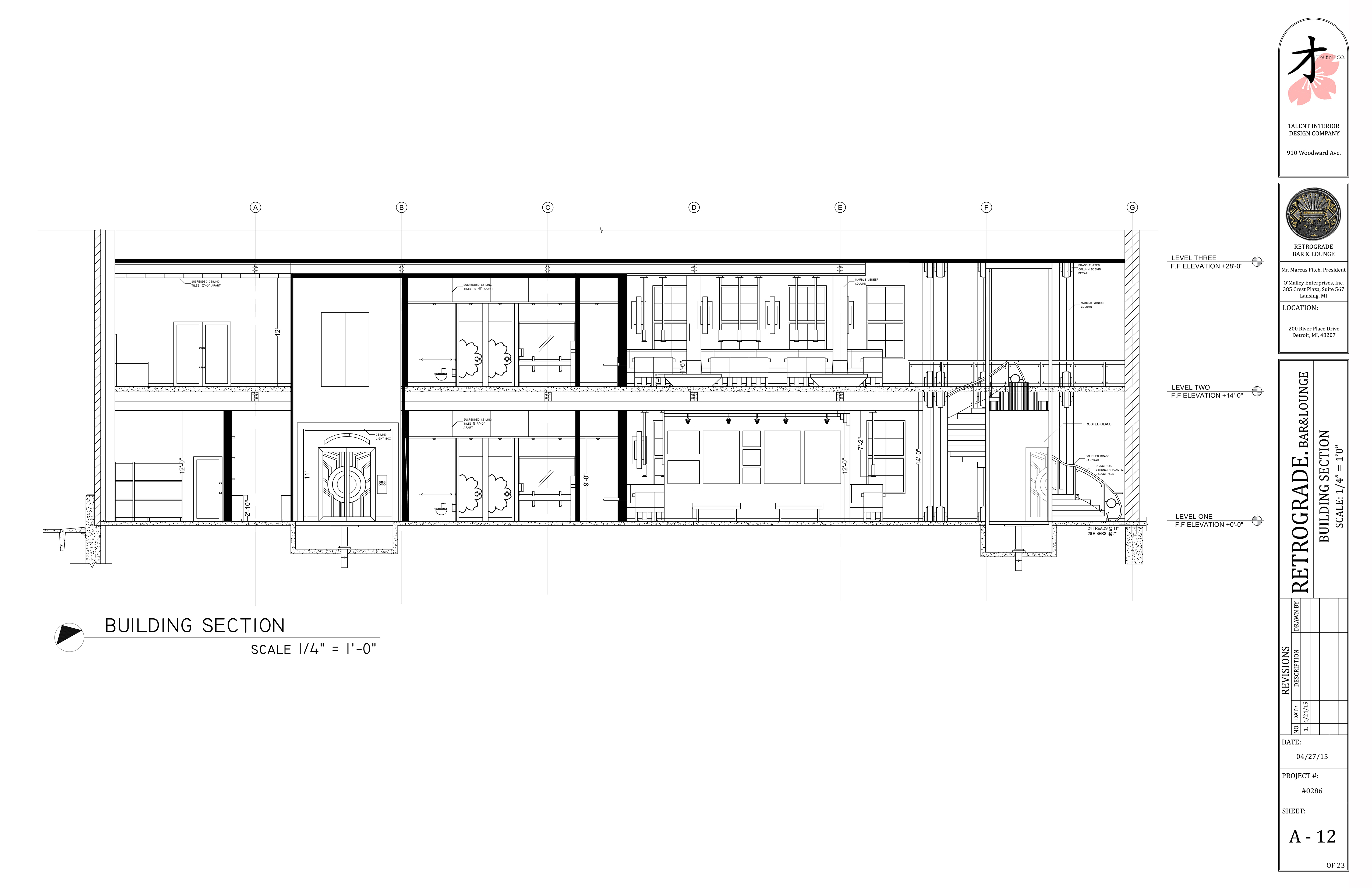
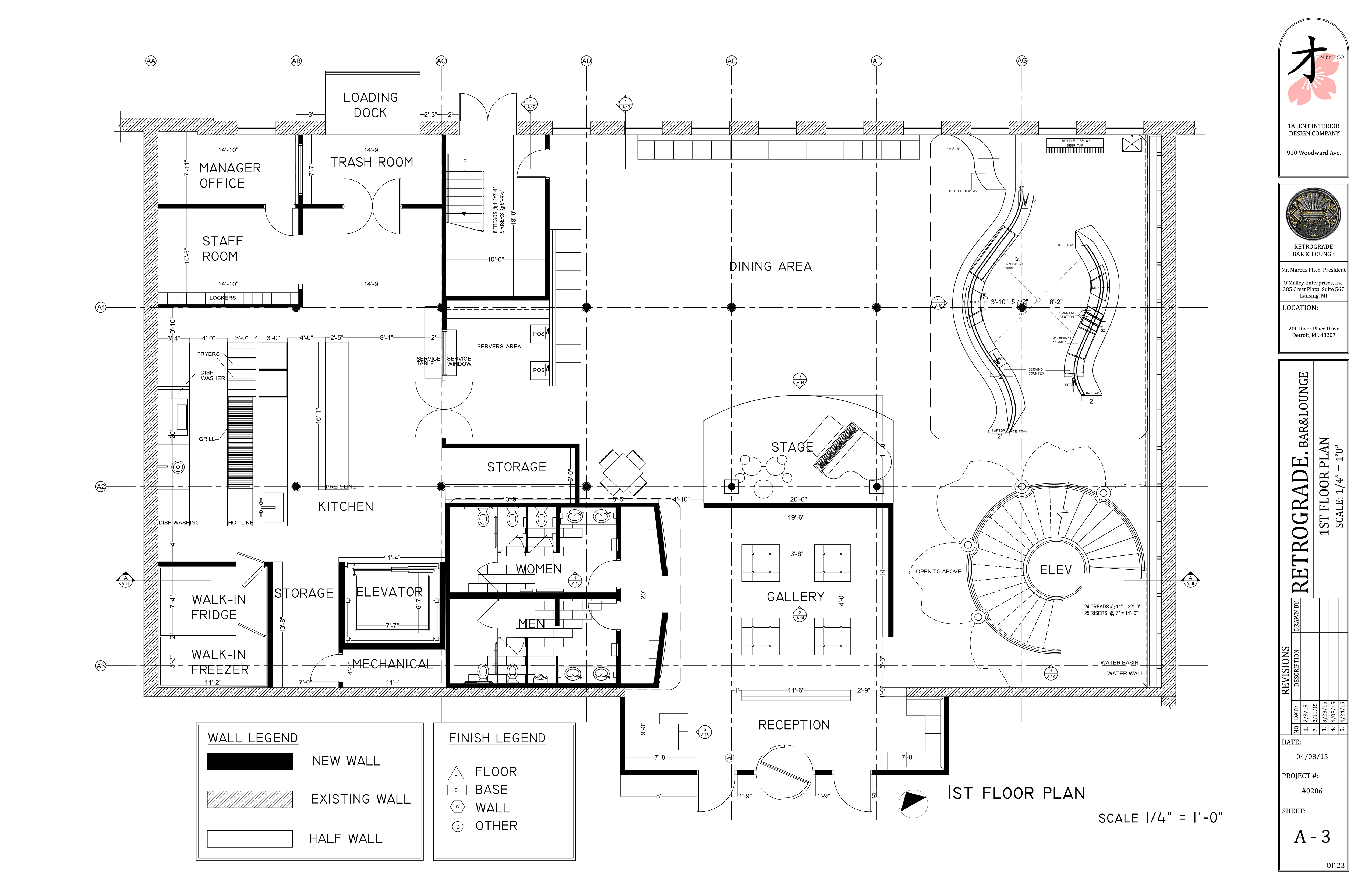
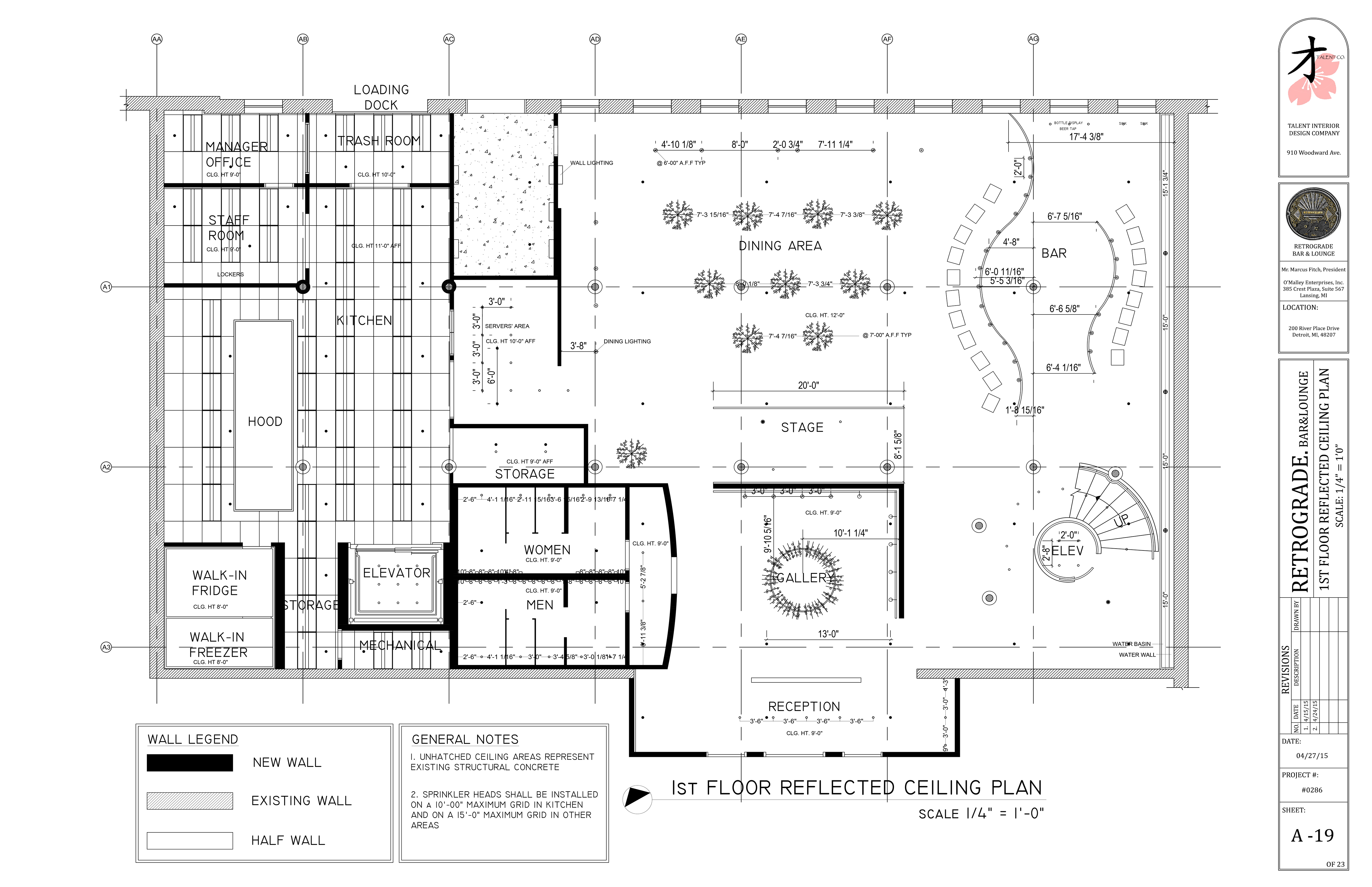
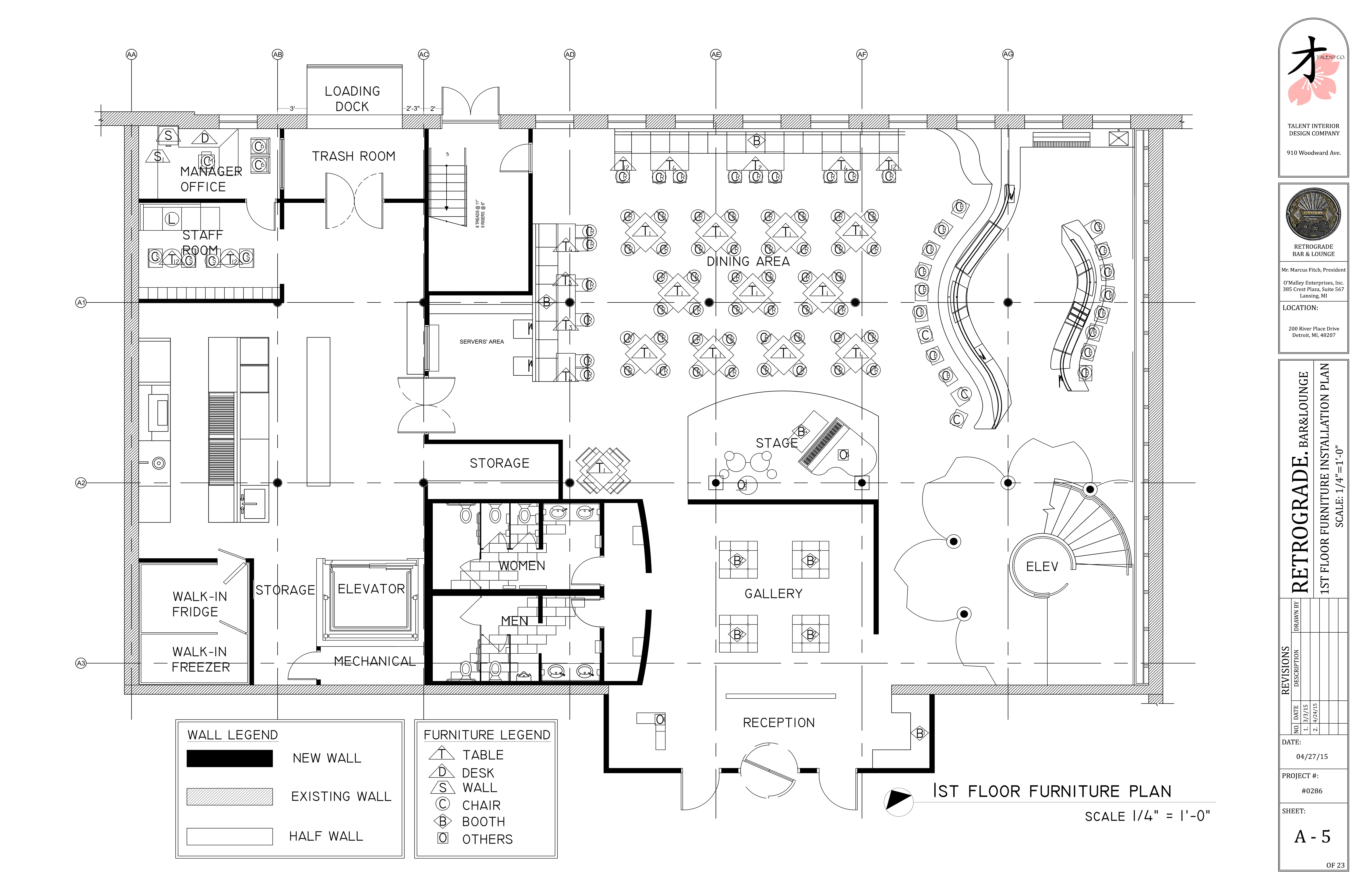
Senior studio capstone: a complete construction document set for Retrograde, a two-story bar and lounge sited inside an existing brick warehouse on the Detroit riverfront. The set runs the full sequence — demolition plan, first and top floor plans, furniture and finish plans, reflected ceiling, electrical, building section, wall details, elevations, and a full FF&E and finish specification — drawn against the 2009 IBC and the barrier-free guide. Designed in a team of three; my work covered space planning, RCP and lighting coordination, finish specification, and the millwork details.
Project cover — site, location, design team
01 — Project cover — site, location, design team
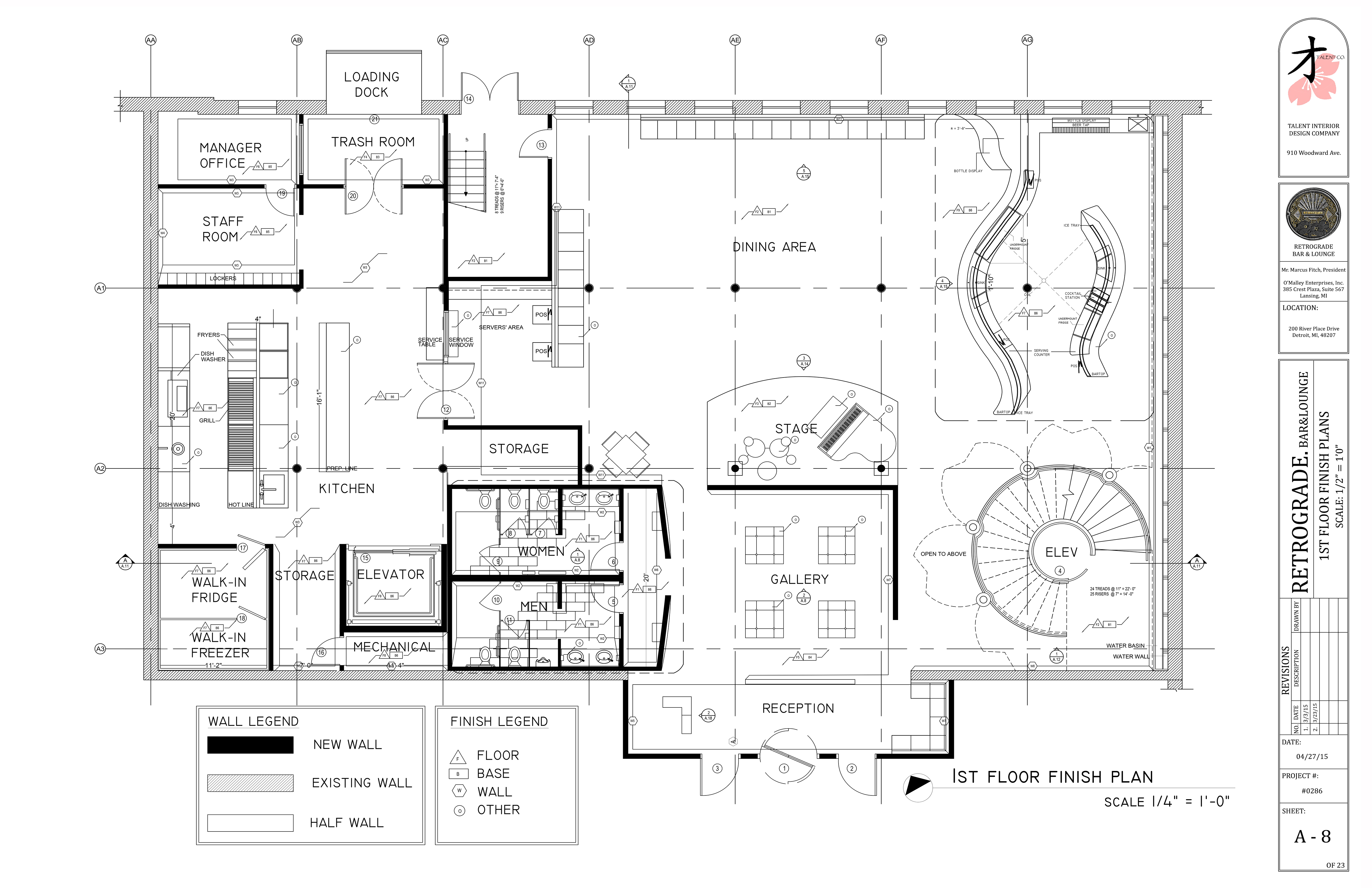
First floor plan
02 — First floor plan
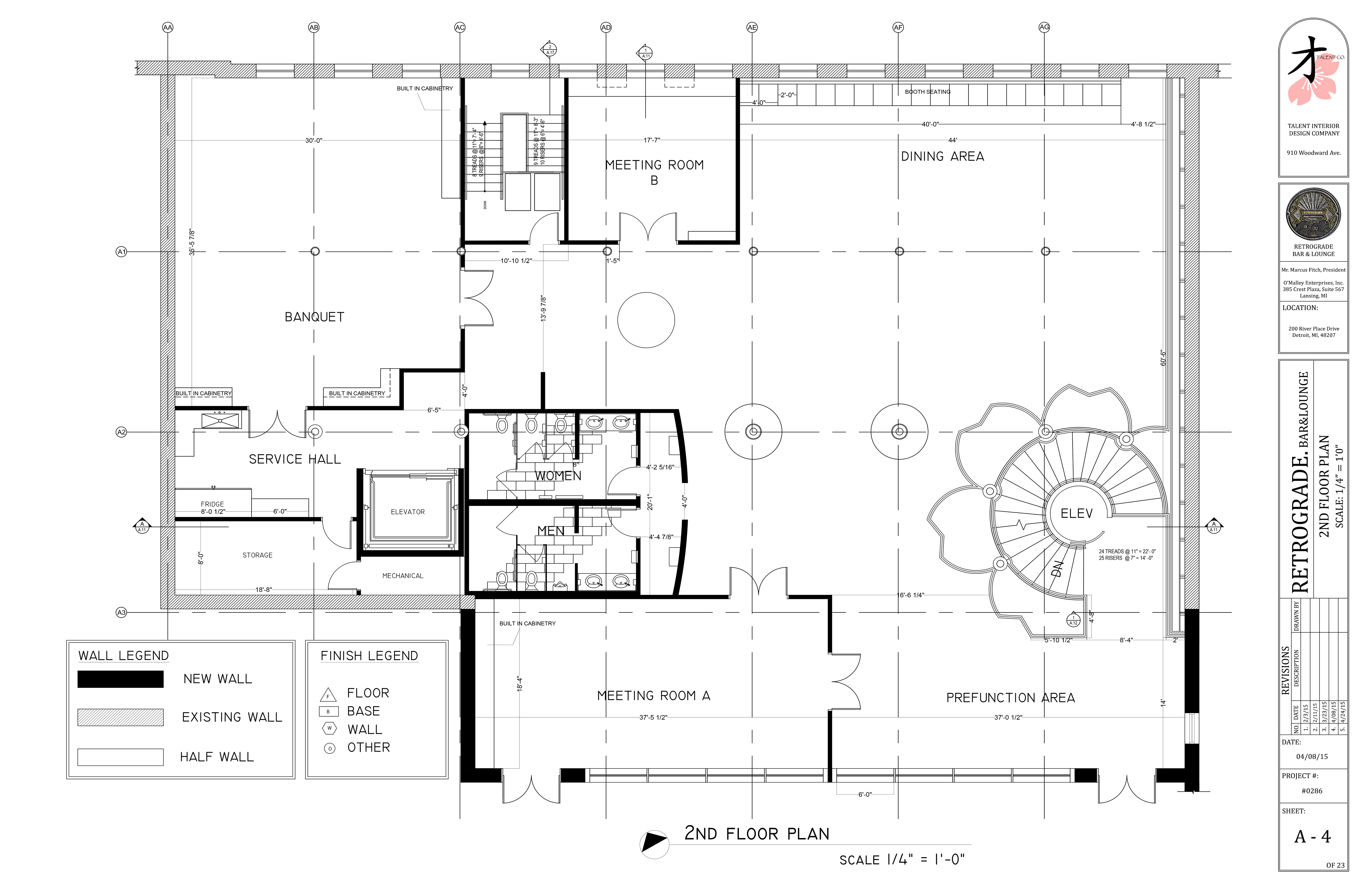
Top floor plan
03 — Top floor plan
Furniture plan — first floor
04 — Furniture plan — first floor
Finish plan — first floor
05 — Finish plan — first floor
Reflected ceiling plan — first floor
06 — Reflected ceiling plan — first floor
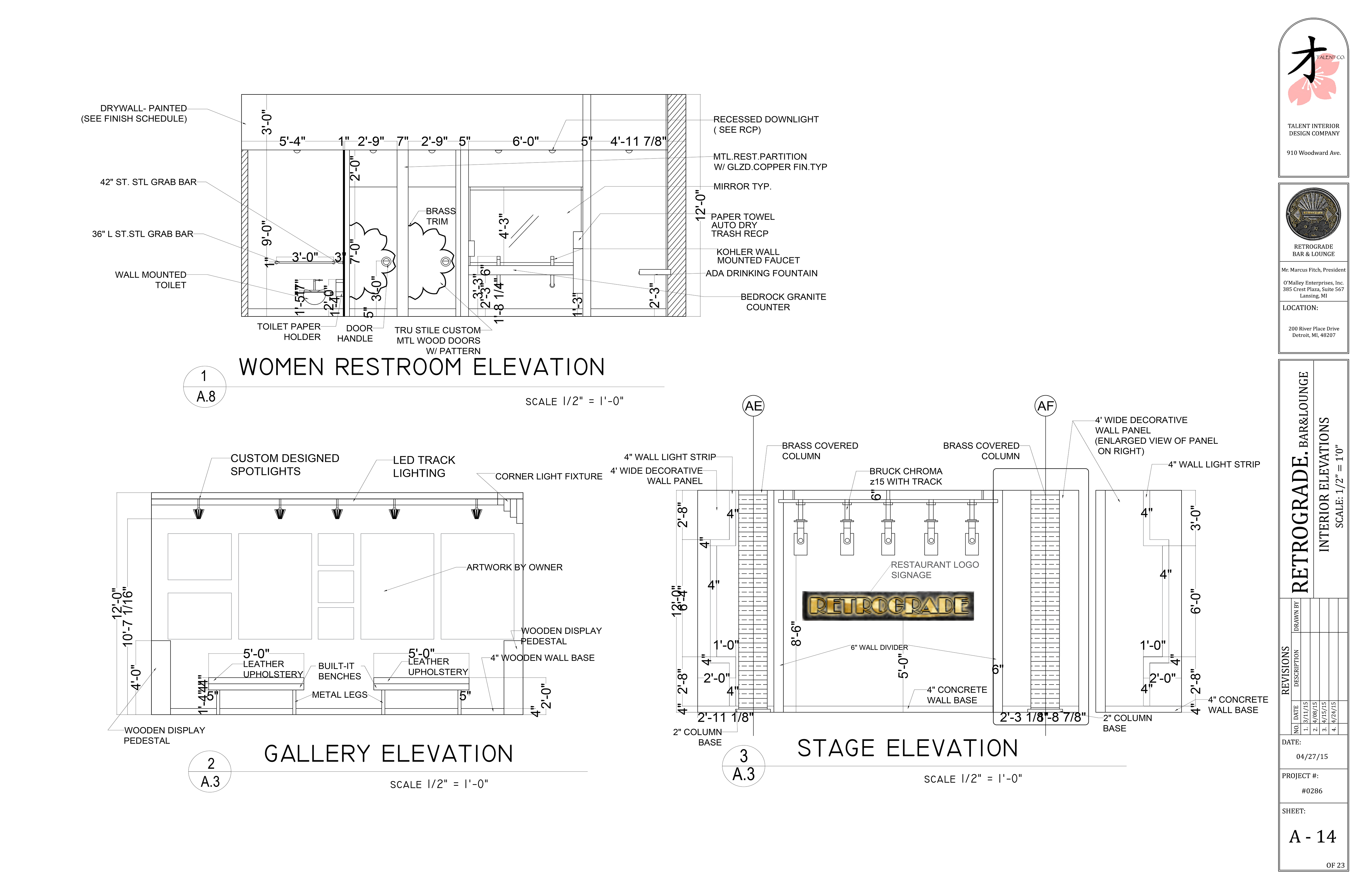
Interior elevation
07 — Interior elevation
Building section
08 — Building section
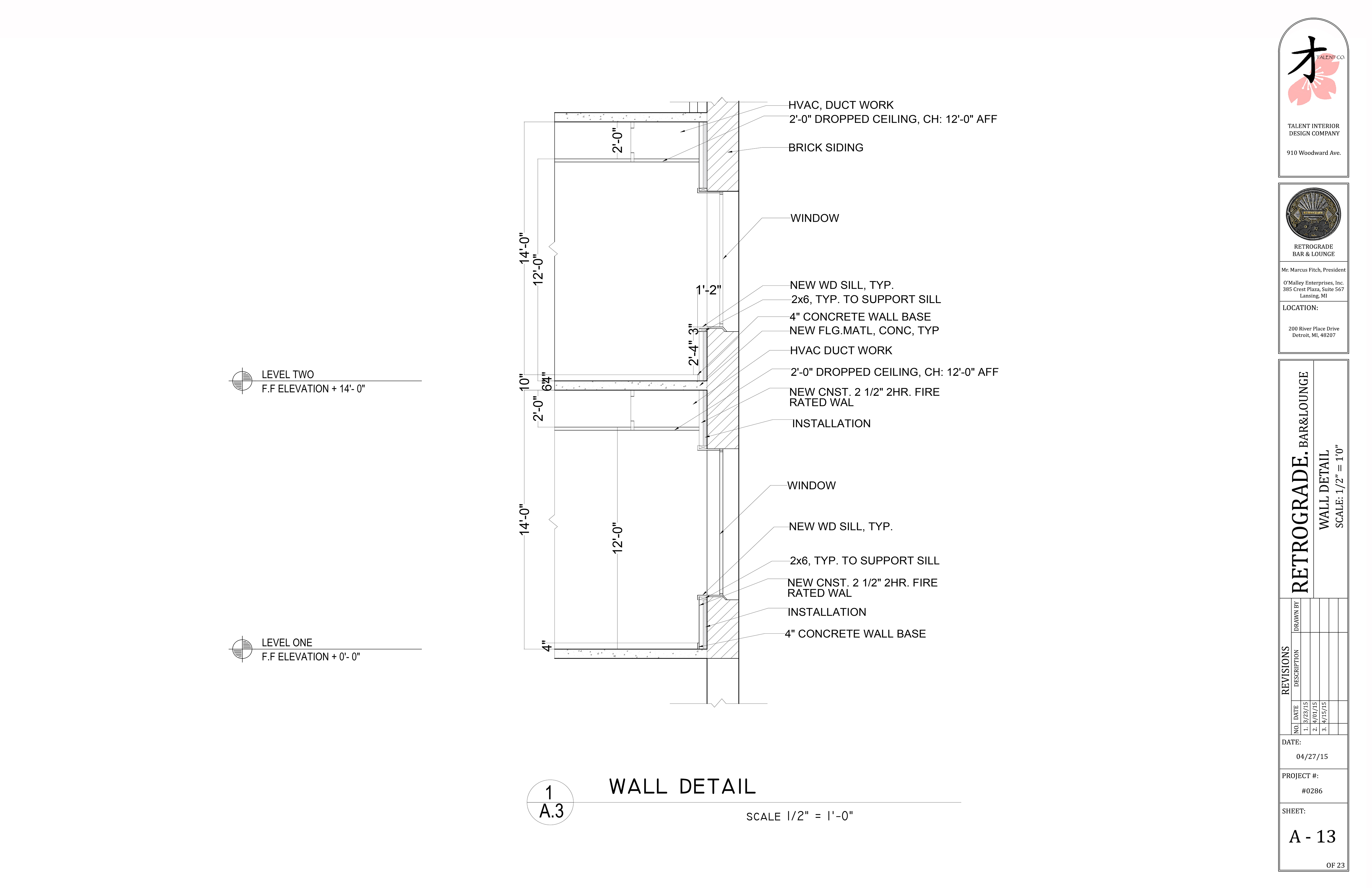
Wall detail
09 — Wall detail
Next in the index

NEXT University