Tingyu Hsu Start a project
Interior Design Studio · Greater Seattle

Rooms that
live quietly,
drawn with
care.

An interior design practice in Seattle — residential, hospitality, and staging, planned on paper and finished by hand.
Located
Seattle, WA
Booking
2026
Selected Work
8 Projects
Lui Hotel & Resort
Featured · Hospitality
Lui Hotel & Resort
2014
8
Selected Projects
5
Years Training
B.S.
Interior Design, EMU
ADA
Barrier-free Fluency

Selected work.

A few recent projects — from conceptual resorts to residential mood boards.
Bean & Leaf Coffee
№ 01 · Retail / F&B
2014Ypsilanti, MI

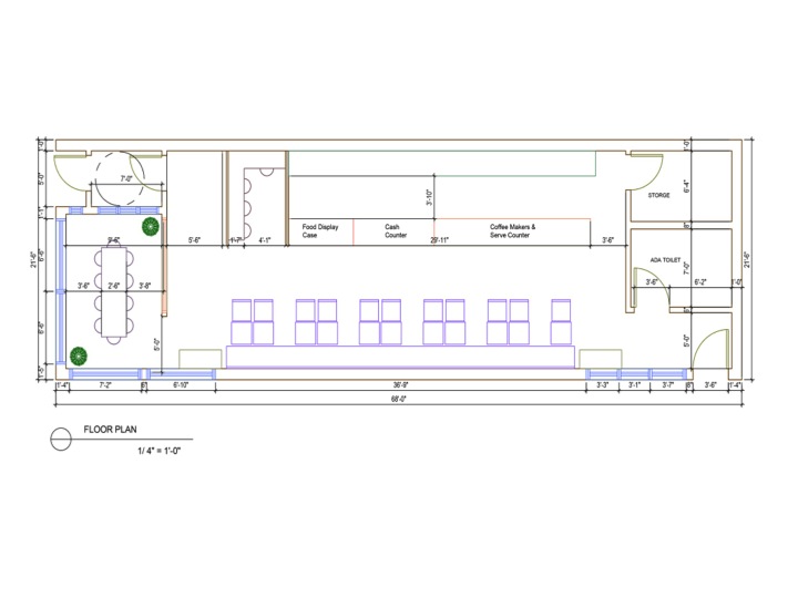
Bean & Leaf Coffee

Bean & Leaf is a renovation study for a 68-foot-long café footprint. The brief: honor the existing shell while rebuilding the customer journey — a clearer queue, an ADA restroom package, and material choices that let a tight plan breathe.

Open case study →
NEXT University
№ 02 · Education / Commercial
2014Campus pilot

NEXT University

A complete documentation package for a university active-learning floor. The drawing set demonstrates fluency across space planning, reflected ceiling coordination, ADA compliance, and a specified lighting scheme using Architonic Aplis recessed fixtures and 2×4 LED panels.

Open case study →
Lui Hotel & Resort
№ 03 · Hospitality
2014Maldives (concept)

Lui Hotel & Resort

A conceptual Maldives resort planned around the silhouette of a sea turtle. Guest bungalows radiate from a central dining shell; circulation follows the flippers. The project explores how a strong narrative form can guide everything from site plan to wayfinding without feeling kitschy.

Open case study →
"
Tingyu draws before she decorates. The plan always works — and then the mood makes you want to live in it.
Reference
A. Lin, Principal Designer