Tingyu Hsu Start a project
№ 05 / 8
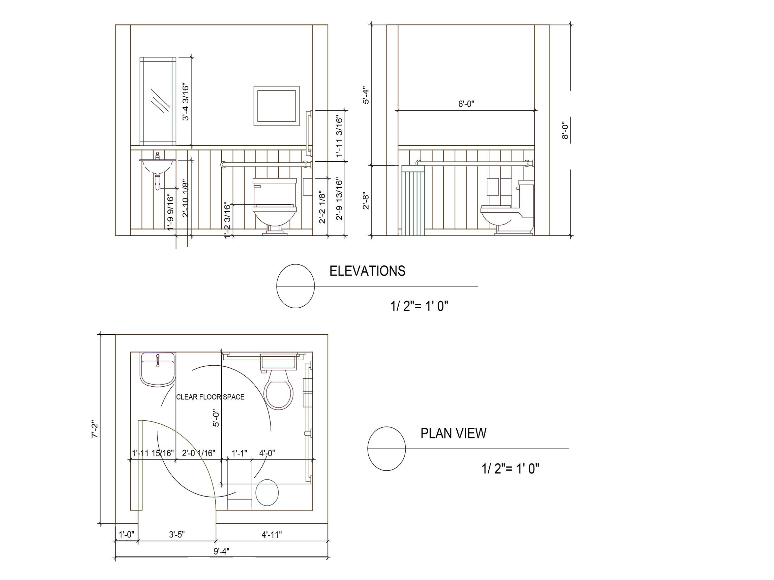
ADA Restroom Package
Back to work
Technical 2014 Studio

ADA Restroom Package

A complete ADA-compliant restroom package — plan, elevations, and section cuts worked out against the barrier-free guide.
Client
IDE 220 — Assignment 2
Role
Designer
Scope
Code review, plan, elevations, section cuts
Year
2014
On this project
A full barrier-free restroom drawing set: plan, enlarged fixture layouts, elevations, and section cuts. Built from the ADA barrier-free guide with every clearance labeled and verified.
Plan + clearances
01 — Plan + clearances
Elevations
02 — Elevations
Section cuts
03 — Section cuts
Next in the index

Architectural & Millwork Details